
本发明涉及电梯领域技术领域,具体为一种新型并列梯加宽型围框结构。
背景技术:
现有并列梯围框略微宽于桁架宽度,2台并列梯围框之间留有间隙,通过装潢将间隙封闭,但是装潢缝隙的材质强度不够,长时间行人踩踏之后装潢面容易变形凹陷,产生安全隐患,所以急需一种新型并列梯加宽型围框结构来解决上述存在的问题。
技术实现要素:
本发明的目的在于提供一种新型并列梯加宽型围框结构,以解决上述背景技术中提出的问题。
为实现上述目的,本发明提供如下技术方案:一种新型并列梯加宽型围框结构,包括桁架、围框固定件、桁架外侧支撑件、盖板防抬起支架、侧边盖板、扶梯中后板、桁架内侧支撑件、围框和螺栓,
所述桁架的外端面固定连接有用于支撑连接的桁架外侧支撑件,且位于所述桁架的内端固定连接有用于支撑的桁架内侧支撑件,其中,所述桁架的侧端固定连接有用于支撑的盖板防抬起支架,且所述桁架通过所述盖板防抬起支架固定连接有用于支撑的侧边盖板,所述桁架的外端面固定连接有用于连接的围框固定件,且所述桁架通过围框固定件和螺栓固定连接有用于支撑的围框,在桁架外部安装桁架外侧支撑件和桁架内侧支撑件,随后通过螺栓将围框进行固定,能有效提高连接的稳定性,同时,通过盖板防抬起支架固定侧边盖板,能有效防止侧边盖板翻转,提高稳定性。
优选的,所述桁架外侧支撑件和桁架内侧支撑件共设有三组,且所述桁架外侧支撑件和桁架内侧支撑件相正对,能提高后续对围框固定的精准性。
优选的,所述侧边盖板共设有两组,且两组所述侧边盖板通过盖板防抬起支架固定在桁架的上端面,提高对桁架的防护性。
优选的,所述桁架的内端面固定连接有用于支撑的扶梯中后板。
优选的,所述围框的前端面通过所述螺栓固定连接有用于连接的折弯连接板,方便进行快捷的连接。
优选的,所述围框宽度大于带动桁架宽度。
与现有技术相比,本发明的有益效果如下:
1.本发明通过设置围框宽度大于桁架宽度,两台并列扶梯踏板之间省去装潢,直接用加宽型围框和踏板代替,提高强度,消除安全隐患。
2.本发明通过在桁架外部安装桁架外侧支撑件和桁架内侧支撑件,随后通过螺栓将围框进行固定,能有效提高连接的稳定性,同时,通过盖板防抬起支架固定侧边盖板,能有效防止侧边盖板翻转,提高稳定性。
附图说明
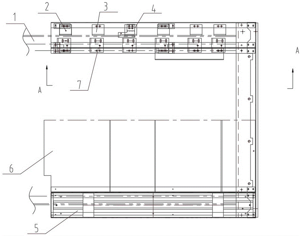
图1为本发明的主体正视图;
图2为本发明的沿主体沿A-A侧视图。
图中:1-桁架、2-围框固定件、3-桁架外侧支撑件、4-盖板防抬起支架、5-侧边盖板、6-扶梯中后板、7-桁架内侧支撑件、8-围框、9-螺栓。
具体实施方式
下面将结合本发明实施例中的附图,对本发明实施例中的技术方案进行清楚、完整地描述,显然,所描述的实施例仅仅是本发明一部分实施例,而不是全部的实施例。基于本发明中的实施例,本领域普通技术人员在没有做出创造性劳动前提下所获得的所有其他实施例,都属于本发明保护的范围。
请参阅图1-2,本发明提供的一种实施例:一种新型并列梯加宽型围框结构,包括桁架1、围框固定件2、桁架外侧支撑件3、盖板防抬起支架4、侧边盖板5、扶梯中后板6、桁架内侧支撑件7、围框8和螺栓9,
桁架1的外端面固定连接有用于支撑连接的桁架外侧支撑件3,且位于桁架1的内端固定连接有用于支撑的桁架内侧支撑件7,其中,桁架1的侧端固定连接有用于支撑的盖板防抬起支架4,且桁架1通过盖板防抬起支架4固定连接有用于支撑的侧边盖板5,桁架1的外端面固定连接有用于连接的围框固定件2,且桁架1通过围框固定件2和螺栓9固定连接有用于支撑的围框8,在桁架1外部安装桁架外侧支撑件3和桁架内侧支撑件7,随后通过螺栓9将围框8进行固定,能有效提高连接的稳定性,同时,通过盖板防抬起支架4固定侧边盖板5,能有效防止侧边盖板5翻转,提高稳定性。
桁架外侧支撑件3和桁架内侧支撑件7共设有三组,且桁架外侧支撑件3和桁架内侧支撑件7相正对,能提高后续对围框8固定的精准性。
侧边盖板5共设有两组,且两组侧边盖板5通过盖板防抬起支架4固定在桁架1的上端面,提高对桁架1的防护性。
桁架1的内端面固定连接有用于支撑的扶梯中后板6。
围框8的前端面通过螺栓9固定连接有用于连接的折弯连接板,方便进行快捷的连接。
围框8宽度大于带动桁架1宽度。
工作原理:在桁架1外部安装外侧支撑件3和桁架内侧支撑件7,随后通过螺栓9和外侧支撑件3和桁架内侧支撑件7将围框8固定,通过盖板防抬起支架4固定侧边盖板5,防止侧边盖板5翻转,由于围框8宽度大于桁架1宽度,故有一部分围框8超出桁架1,两台并列扶梯的围框8部分可以直接贴合,中间无空隙,省去装潢部分,且此部分下部有支撑件支撑,大大提高了强度,可以经受乘客长时间反复的踩踏,保证了乘客的安全,消除了安全隐患。
尽管已经示出和描述了本发明的实施例,对于本领域的普通技术人员而言,可以理解在不脱离本发明的原理和精神的情况下可以对这些实施例进行多种变化、修改、替换和变型,本发明的范围由所附权利要求及其等同物限定。