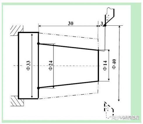
例4、G90外圆固定循环指令编程,如下图
点画线代表毛坯。

FANUC数控车编程如下:
O9004
G50 X40 Z3 (设立坐标系,定义对刀点的位置)
M03 S400 (主轴以400r/min 旋转)
G90 X30 Z-30 I-5.5 G98 F100 (加工第一次循环,吃刀深3mm)
X27 (加工第二次循环,吃刀深3mm)
X24 (加工第三次循环,吃刀深3mm)
M30 (主轴停、主程序结束并复位)
----------------------
华中数控车床编程如下:
%9004
G92 X40 Z3 (设立坐标系,定义对刀点的位置)
M03 S400 (主轴以400r/min 旋转)
G91 G80 X-10 Z-33 I-5.5 F100 (加工第一次循环,吃刀深3mm)
X-13 Z-33 I-5.5 (加工第二次循环,吃刀深3mm)
X-16 Z-33 I-5.5 (加工第三次循环,吃刀深3mm)
M30 (主轴停、主程序结束并复位)
===============
例5、G94端面固定循环指令编程,如下图

FANUC数控车编程如下:
O9005
N1 G54 G90 G00 X60 Z45 M03(选定坐标系,主轴正转,到循环起点)
N2 G94 X25 Z31.5 K-3.5 G98 F100 (加工第一次循环,吃刀深2mm)
N3 X25 Z29.5 K-3.5 (每次吃刀均为2mm,)
N4 X25 Z27.5 K-3.5 (每次切削起点位,距工件外圆面5mm,故K 值为-3.5)
N5 X25 Z25.5 K-3.5 (加工第四次循环,吃刀深2mm)
N6 M05 (主轴停)
N7 M30 (主程序结束并复位)
------------------------
华中数控车床编程如下:
%9005
N1 G54 G90 G00 X60 Z45 M03(选定坐标系,主轴正转,到循环起点)
N2 G81 X25 Z31.5 K-3.5 F100 (加工第一次循环,吃刀深2mm)
N3 X25 Z29.5 K-3.5 (每次吃刀均为2mm,)
N4 X25 Z27.5 K-3.5 (每次切削起点位,距工件外圆面5mm,故K 值为-3.5)
N5 X25 Z25.5 K-3.5 (加工第四次循环,吃刀深2mm)
N6 M05 (主轴停)
N7 M30 (主程序结束并复位)
================
例6、G92螺纹切削循环指令编程,如下图 (毛坯外形已加工完成)

FANUC数控车编程如下:
O9006
N1 G54 G00 X35 Z104 (选定坐标系G55,到循环起点)
N2 M03 S300 (主轴以300r/min 正转)
N3 G92 X29.2 Z18.5 F3(第一次循环切螺纹,切深0.8mm)
N4 X28.6 (第二次循环切螺纹,切深0.4mm)
N5 X28.2(第三次循环切螺纹,切深0.4mm)
N6 X28.04 (第四次循环切螺纹,切深0.16mm)
N7 M30 (主轴停、主程序结束并复位)
--------------------------------
华中数控车床编程如下:
%9006
N1 G54 G00 X35 Z104 (选定坐标系G55,到循环起点)
N2 M03 S300 (主轴以300r/min 正转)
N3 G82 X29.2 Z18.5 C2 P180 F3(第一次循环切螺纹,切深0.8mm)
N4 X28.6 Z18.5 C2 P180 F3 (第二次循环切螺纹,切深0.4mm)
N5 X28.2 Z18.5 C2 P180 F3 (第三次循环切螺纹,切深0.4mm)
N6 X28.04 Z18.5 C2 P180 F3 (第四次循环切螺纹,切深0.16mm)
N7 M30 (主轴停、主程序结束并复位)
=================
例7、G71(内)外圆复合循环指令编程,如下图
要求循环起始点在A(46,3),切削深度为1.5mm(半径量)。
退刀量为1mm,X 方向精加工余量为0.4mm,Z 方向精加工余量
为0.1mm,其中点划线部分为工件毛坯

FANUC数控车编程如下:
O9007
N10 G54 G00 X80 Z80 (选定坐标系G54,到程序起点位置)
N20 M03 S400 (主轴以400r/min 正转)
N30 G01 X46 Z3 F0.2 (刀具到循环起点位置)
N35 G71 U1.5 R1
N40 G71 P50 Q130 U0.4 W0.1 F0.3 (粗切量:1.5mm 精切量:X0.4mm Z0.1mm)
N50 G00 X0 (精加工轮廓起始行,到倒角延长线)
N60 G01 X10 Z-2 (精加工2×45°倒角)
N70 Z-20 (精加工Φ10 外圆)
N80 G02 U10 W-5 R5 (精加工R5 圆弧)
N90 G01 W-10 (精加工Φ20 外圆)
N100 G03 U14 W-7 R7 (精加工R7 圆弧)
N110 G01 Z-52 (精加工Φ34 外圆)
N120 U10 W-10 (精加工外圆锥)
N130 W-20 (精加工Φ44 外圆,精加工轮廓结束行)
N135 G70 P50 Q130
N140 X50 (退出已加工面)
N150 G00 X80 Z80 (回对刀点)
N160 M05 (主轴停)
N170 M30 (主程序结束并复位)
-----------------------------
编程如下:
%9007
N1 G54 G00 X80 Z80 (选定坐标系G54,到程序起点位置)
N2 M03 S400 (主轴以400r/min 正转)
N3 G01 X46 Z3 F100 (刀具到循环起点位置)
N4 G71U1.5R1P5Q13X0.4 Z0.1(粗切量:1.5mm 精切量:X0.4mm Z0.1mm)
N5 G00 X0 (精加工轮廓起始行,到倒角延长线)
N6 G01 X10 Z-2 (精加工2×45°倒角)
N7 Z-20 (精加工Φ10 外圆)
N8 G02 U10 W-5 R5 (精加工R5 圆弧)
N9 G01 W-10 (精加工Φ20 外圆)
N10 G03 U14 W-7 R7 (精加工R7 圆弧)
N11 G01 Z-52 (精加工Φ34 外圆)
N12 U10 W-10 (精加工外圆锥)
N13 W-20 (精加工Φ44 外圆,精加工轮廓结束行)
N14 X50 (退出已加工面)
N15 G00 X80 Z80 (回对刀点)
N16 M05 (主轴停)
N17 M30 (主程序结束并复位)
本文来自莫莫的微信公众号【UG数控编程】,关注后可领取教程。
学习UG编程,能力到了,薪资都不是问题。干操机累,即使干操机一个月五到七千,但那不是长之计,你每次换了工作薪资还是一样,没多大区别。而干编程,你越往后,积累的技术能力越强,薪资自然会更高。希望大家找对学习的方向,也希望在群192963572可以帮助到正在迷茫的你。