Composite construction
Composite construction
. construction is basically an assembly of in-situ(现场) and
ex-situ(非现场) structural and non-structural elements;various terminologies(术语) have been coined to describe ex-situ
elements e.g. prefab(预制), pre-assemly(预装配), modularization(模块化);drivers include:
tight project shedule;
2. design requirements-clear span(跨度), limited dimensions;
3. quality control;cost;
however, there are less flexible and often present tight
tolerances(精度) for constrction;civil engineering projects can be classified under:
substructure(底部构造) i.e foundations and basements;
superstructure(上层构造) i.e. frame and cladding;
services
the substructure is invariably in- situ but the superstructure may be
wholly prefabricated modular units or a compositethis lecture focuses on
composite portal frame(综合门户框架)andskeletal construction(骨架)
Portal Frames
(门式框架)
introduce
portal frames are rise dtructures based on the skeletal concept;
structurally, portal frame comprise foundation(in-situ concrete), column(preformed timber, steel or concrete) and rafters for the roof;
members connected to give a continuous rigid structure(刚性结构);
materials
- haunches(加腋) provided to enhance the stiffness of the frame;
- large clear spans;
- stell, concrete, timber;


types
- pitched roof portal frame(坡口构架);
- mansard portal frame(双重斜坡的门户框架);
- propped portal frame(支撑框架);
- cellular portal frame(蜂窝门框);

theory
bending moment & deflection proportional to span
connections


3D model

conventional framed- building
(传统建筑物框架)
- base on the skeletal concept of desugn- load paths: roof/slab—>
beams—>column—>foundation - often a choice between timber/ concrete/ steel;
- analysed in terms of(依据) strength per unit weight; cost per unit
weight; construction; sustainability etc; - foundation in-situ, columns and beams tend to be precast concrete or
steel;
slab
slab can be:
- precast concrete hollowcore;
- precast double tees;
- waffle or ribbed slabs;
- metal decking;
- precast soild slab;

Construction of framed structures
- design and construction based on a grid–usually a structural
grid(结构网格); - design philosophy(设计理念) can be based on a permissible stress or limit
state depending on applicable norm(规范)–BS or Eurcode; - design output- a set of construction drawings(一套设计图纸) including-
general arrangement, elevations and sections; - on site, contractor sets out–coordinates, bearings and distances,
offsets from a baseline; - connection depends on the design; welding(焊接) or bolting(螺栓);
construction drawings
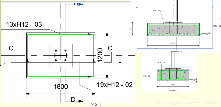
general arrangement**?*
north elevation**?*
plan and section through foundation**?*
operation process
- clear site(清理场地)
- set out footings(确定放置位置)
- excavate pits, allow working space(挖坑,留出工作空间)
- compact bottoms of excavations(压实底部)
- lay blinding/bedding layer(铺垫层)

- place spacers & mesh(铺垫块和钢筋网)
- set out positions of anchor bolts(设定地脚螺栓的位置)
- fix hold down/ anchor bolts(固定地脚螺栓)
- fix pockets for horizontal adjustment

- pre-formed gusset plates installed to tie anchor bolts(成品扣板安装到地脚螺栓上)
- exact gusset positions marked and secured(确定扣板位置并固定)
- cast concrete(浇灌混凝土)
- afetr specified curing, remove formwork and backfill(固化后,拆除膜壳并回填)
.
- install stanchions/columns by bolting–lose bolting intially(通过螺栓安装支柱)
- adjustment horizontally using pockets & vertically by packing the base(调整使支柱水平且垂直)

- progress to rafter installation(安装椽)
- final tightening upon satisfactory horizontal and verticality checks(水平,竖直检查确认后紧固)
- grount all pocket(重复操作)
Summary
- portal frame for large spanning unobstructed spaces(大跨度,无障碍);
- hinges(铰链) introduced to control moments;
- members prefabricated(工件预制), preparatory works essential;
- design must consider possible tolerances(精度), and construction must
aim to achieve these;