
169页管道安装工程识图及讲义,超多经典图例,看懂图纸再也不难
建筑工程中管道的施工是一项非常重要的工程,它主要应用于给排水和消防系统中。而对于刚入行的电气安装工程造价员来说,首先需要掌握的就是识图的能力和工程量的计算。
这份管道安装基础识图,包含管道工程图分类及表示方法、给排水管道施工等,概括建筑给排水、供暖和消防系统,文字描述言简意赅,中肯通俗,通过各个方面讲解了管道安装图纸及施工工艺,内容全面,技巧掌握容易。
【资料分享看尾图!!!】

目录:
- 管道工程图概述
- 建筑给水排水工程图
- 采暖与通风空调工程图

管道工程图概述:
工程项目性质分类,专业分类,图纸和作用分类

管道工程图分类

建筑给水排水工程图:
现代建筑给排水的范围,建筑内部给水系统

现代建筑给排水的范围
生活、生产、消防给水系统,室内给水系统的组成(引水管、水表节点)

建筑内部给水系统

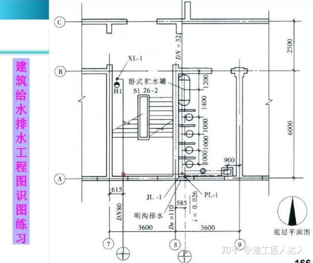
建筑给水排水工程图识图
采暖与通风空调工程图:
供暖工程:热源、室外热力管网和室内供暖系统

热源、室外热力管网和室内供暖系统
热水供暖系统、蒸汽供暖系统、热风供暖系统和烟气供暖系统

热水供暖系统、蒸汽供暖系统、热风供暖系统和烟气供暖系统
采暖工程图组成:平面图、系统图和详图三部分

采暖工程图组成:平面图、系统图和详图
管道安装工程识图及施工工艺讲义从管道工程基本知识、给排水管道工程、采暖工程图的识读等内容讲解,逻辑清晰,图文并茂,直观易理解。
【资料领取请看图!!!】

版权声明:本文为weixin_39574708原创文章,遵循CC 4.0 BY-SA版权协议,转载请附上原文出处链接和本声明。